Destacado

Departamento en venta 3 ambientes, en Pinamar, con financiación, a metros del mar, La Argentina Beach 3g

  • USD210,000

Descripción

La Argentina 4 – Beach – Pinamar

Dirección: Simbad del Marino 290 Entre Libertador y Del Odiseo.

Entrega Primavera 2025
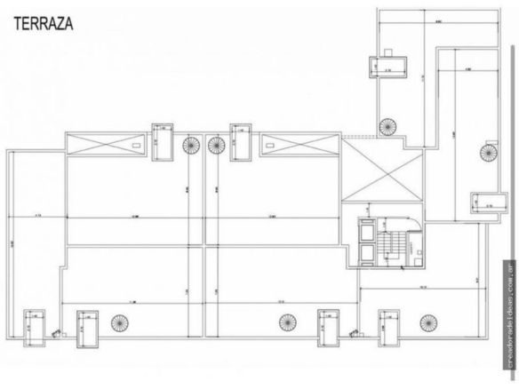
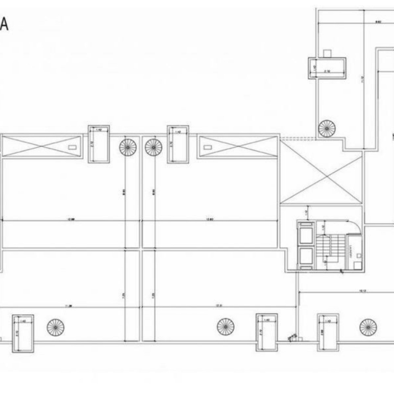
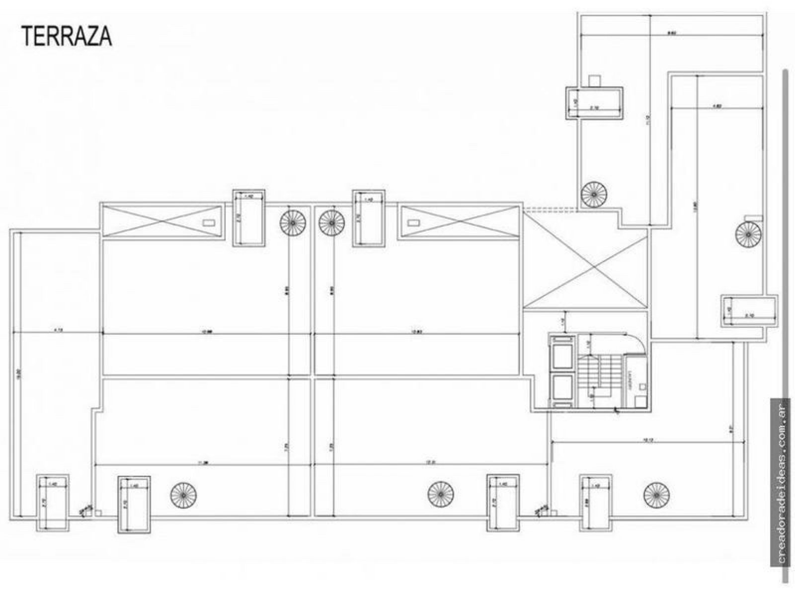
TERCER PISO G

Departamento 3 ambientes con cochera cubierta y terraza privada de 21m2, increíble vista al mar
Superficies:

Sup Cub: 56mt2

Sup Desc: 10mt2

Desarrollo de 37 Unidades

Terminaciones: piso y zócalo de porcelanato, revestimiento cerámico en baños y cocina, cocina con barra según dpto.: equipada con bajo mesadas en melamina, mesadas de granito, grifería de mesada Piazza o similar, pileta de acero inoxidable, anafe y horno eléctricos. Termotanque eléctrico para agua caliente.

Baños equipados con lavatorio, inodoro, bidet (Piazza o similar), receptáculo de ducha in situ y griferías Piazza o similar. No incluye accesorios ni mamparas.

Pre- instalación para Climatización por aire acondicionado frío/calor.

Cielorrasos suspendidos de Durlock en interiores o hormigón visto (según diseño).

Instalación eléctrica completa, sin artefactos de iluminación.

Carpinterías de PVC con DVH.

Puertas placa interiores (mdf línea americana o enchapadas en madera), con marco y contramarco de madera maciza.

Placares con módulo de cajones, estante y barral en melamina blanca. Frentes con puertas corredizas en melanina color o texturada.

Los artefactos eléctricos provistos por la empresa, tienen garantía de 1 año a partir de la toma de posesión de la vivienda.

Todos los departamentos cuentan con parrilla eléctrica en su balcón.

Todo material o insumo no expresado en la presente, se considera no incluido.

AMENITIES:

Pileta común en patio del edificio, amplio SUM con parrilla y cocina completa para reuniones, gimnasio, espacio micro cine y espacio loundry .

Cocheras amplias y espacio lava cuatri.

Detalles

ID de propiedad 436467
2 Dormitorios
3 Habitaciones
1 Baño
Tamaño de propiedad 56 m2
Área terrestre 78 m2
3 Garajes
Updated on noviembre 18, 2025 at 3:08 pm

Dirección

  • Dirección: La Argentina beach 3G
  • Ciudad: Pinamar
  • Estado/País: Bs.As. Costa Atlántica
  • Zona: Linea Sur Mar

Programe una visita

Programe una visita

Tu tipo

listados similares

Compare listings

Compare