Destacado

Villa Robles Barrio Brisas

  • USD450,000

Descripción

Casa en construcción en Villa Robles – Barrio Brisas, lote 150.

Ubicada en el exclusivo Barrio Brisas dentro del desarrollo Villa Robles, una excelente oportunidad para disfrutar de la vida cerca del mar, con un  entorno natural y de tranquilidad garantizados.

La casa cuenta con una superficie cubierta de 188,46 m² y 61,54m² semicubiertos.

Distribuidos en dos plantas con diseño moderno y funcional:

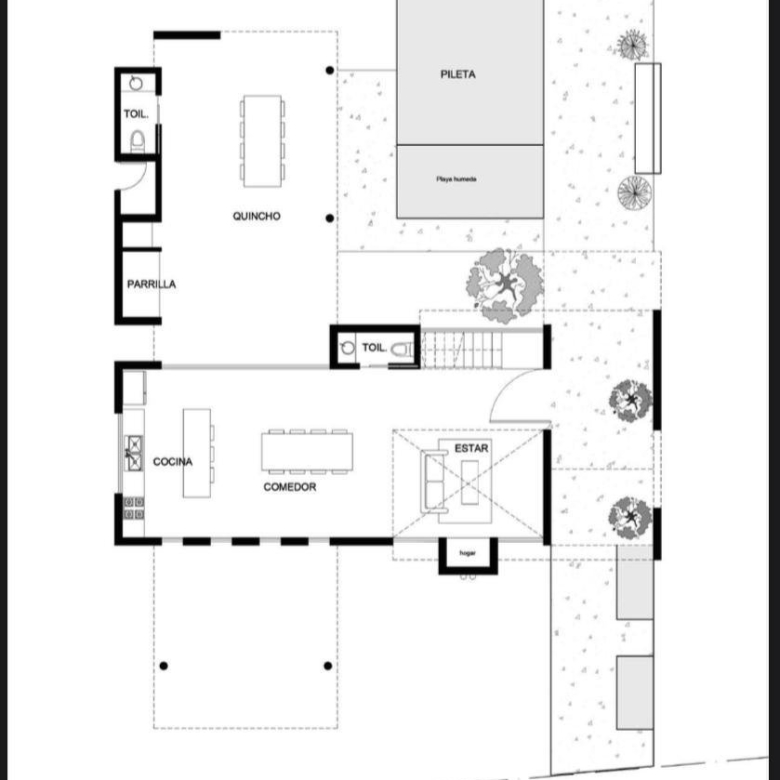
Planta baja:

Acceso a través de un ingreso semicubierto, amplio living con doble altura que brinda gran luminosidad, toilette de recepción, cocina integrada al comedor, y un espacioso quincho con parrilla y segundo toilette, ideal para reuniones sociales y momentos al aire libre.

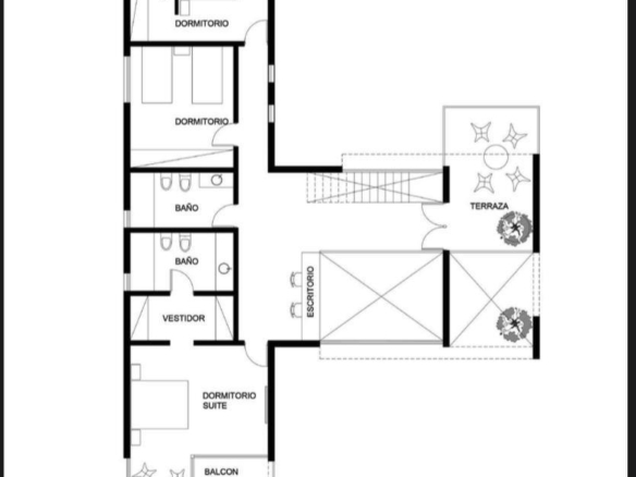
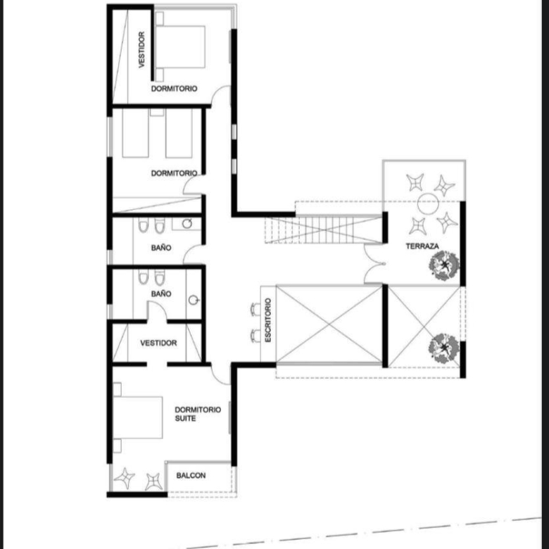
Planta alta:

Dos dormitorios que comparten un baño completo y un tercer dormitorio en suite con salida a un balcón terraza de uso común, pensado para disfrutar de vistas abiertas y el entorno natural del barrio.

A tan solo 200 metros del mar y en uno de los sectores más buscados de Villa Robles.

Esta propiedad combina diseño, comodidad y una ubicación privilegiada. Ideal tanto para vivienda permanente como para escapadas de descanso en la costa.

Detalles

ID de propiedad 436433
4 Dormitorios
5 Habitaciones
3 Baños
Tamaño de propiedad 222,72 m2
Área terrestre 253,48 m2
No definido Garajes
Updated on noviembre 18, 2025 at 3:14 pm

Dirección

  • Dirección: Villa Robles, Barrio Privado
  • Ciudad: Pinamar
  • Estado/País: Bs.As. Costa Atlántica
  • Zona: Villa Robles

Programe una visita

Programe una visita

Tu tipo

listados similares

Compare listings

Compare